Ittiri, elegante casa indipendente con giardino privato Report
Via Ospedale, Ittiri, 07044, Sardegna , SassariIn vendita €275.000
Ittiri, Via Ospedale, in una delle vie principali del paese, la House & Life Immobiliare vende una casa indipendente con giardino, terra cielo, accuratamente rifinita ed elegante.
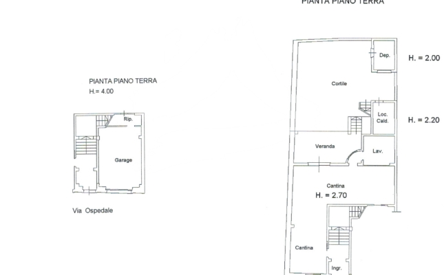
La soluzione si sviluppa su 3 livelli, dove al piano terra troviamo un ampia zona giorno con salotto accessoriato da camino, una grande cucina abitabile ed un ampio bagno, dal salotto si apre una portafinestra che ci conduce all’esterno dove troviamo un grande spazio con tavolo e barbecue più un angolo di giardino ad uso esclusivo dove è possibile salire al piano superiore anche tramite una scala esterna. Una porta nella zona della cucina ci conduce direttamente ad un grande e comodo garage accessibile anche dall’esterno sul fronte strada con serranda elettrica.
Delle eleganti scale in legno ci conducono al primo piano composto da un ampio salotto open space di gran classe con pavimenti totalmente in parquet, anche qui troviamo un camino a vetri con doppia facciata, sul salone e sulla camera retrostante. Separata dal salotto per mezzo di una porta a vetri un ampia cucina abitabile, accessoriata da ripostiglio più doppio servizio, dalla cucina abbiamo l’uscita su una grande terrazza collegata alla scala esterna che ci riporta al giardino del piano sottostante. Segue un disimpegno che conduce verso una grande camera da letto matrimoniale, accessoriato da una grande armadiatura a muro, più antibagno e bagno.
Al centro del salotto si apre una raffinata scala totalmente in legno che ci accompagna al piano superiore mansardato, ma dalle altezze utili, dal design particolare che ne valorizza l’aspetto, dove troviamo due grandi camere di cui una di queste accessoriata da comodi armadi a muro più bagno, e si completa con un ulteriore bagno.
Il riscaldamento è di tipo autonomo.
La Classe Energetica assegnata è in fascia E.
La proposta immobiliare si presta anche ad uno acquisto distinto, infatti è possibile acquistare separatamente dal piano terra, esclusivamente il primo e secondo piano.
Informazioni sull'immobile
- Dettagli
- Stato Immobile : Buono/Abitabile
- Tipo Proprietà : Intera Proprietà
- Condominio : No
- Piano dell'immobile : T-1-2
- Cucina : Abitabile
- Giardino : Si, Privato
- Classe Energetica : E



















































